
一、預防樓板防裂措施示范
常見問題表現形式:
現澆板產生貫通性裂縫或上表面裂縫、現澆板外角部位處產生斜裂縫、現澆板沿預埋線管處產生裂縫、現澆板厚度偏薄、樓層房屋凈高、層高不符合設計要求等。
標準處理措施:
1)在砼現澆樓板板跨度達到4.2m及以上跨度時,轉角處設置放射形鋼筋,鋼筋的數量、規格不少于設計要求,長度大于板跨的1/3,且不小于1.5m。
2)模板支撐系統必須經過計算,除滿足強度要求外,還必須有足夠的剛度和穩定性,拆模必須滿足砼強度拆模要求。
3)使用通長鋼筋馬鐙筋,滿足現澆樓板負彎矩鋼筋的正確位置。采取防踩踏措施,防止鋼筋被踩踏變形或移位。
4)板內預埋管線應置于板的中部1/3范圍,當管線并列設置時,管道之間水平凈距不應小于3d(d為管徑)。當板內預埋管線處板面沒有鋼筋時,應增設Φ6@150(L=450)鋼筋網帶于板面。
5)嚴格控制現澆板厚度,在混凝土澆筑前應做好現澆板厚度的控制標識,每1.5m范圍內宜設置一處,澆筑過程應進行插簽檢查厚度。
6)樓板混凝土強度未達到1.2MPa前,不得在其上踩踏或安裝支架施工。
二、屋面及女兒墻防裂防滲漏措施示范
常見問題表現形式:
屋面泛水處開裂、滲漏;天溝積水、女兒墻開裂滲水;剛性防水層開裂滲漏等。
標準處理措施:
1)女兒墻宜設置鋼筋混凝土構造柱,構造柱間距不大于4m,構造柱應伸至現澆混凝土壓頂梁、板并一起整澆。女兒墻每隔12m設置溫度縫 ,做法見下圖。

2)砌體女兒墻必須砌筑密實,砌塊強度等級不低于MU10,采用水泥砂漿砌筑,砂漿強度等級不低于M10,屋面女兒墻、煙道等砌體根部做鋼筋混凝土翻邊,高度不小于600mm且至少高出屋面實際完成面50mm。砌體女兒墻與混凝土交接處掛設鋼絲網防止開裂。
3)天溝及女兒墻按規定留設溢水孔、排水口,排水口篦子用經久耐用的球形鑄鐵篦子,防止篦子損壞排水口堵塞。天溝排水坡度及排水管數量應滿足排水流速要求。
4)嚴格控制屋面坡度和設縫長度,局部長度超過規范要求或寬度發生變化時,應按規范增設分格縫,設計應提供屋面構造要求和分縫平面圖。
5)屋面、露臺地漏匯水區,設置淺平排水溝,及時將水排出,杜絕屋面集水。
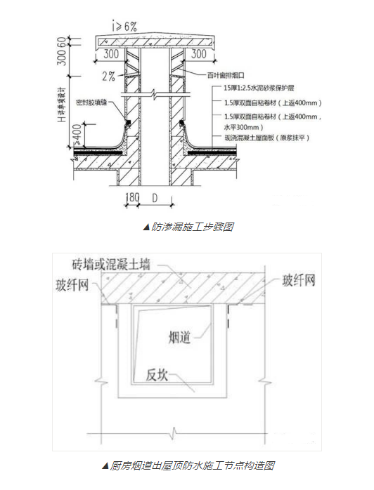
6)卷材防水屋面基層與女兒墻、山墻、天窗壁、變形縫、煙、井道等突出屋面結構的交接處和基層轉角處,找平層均成圓弧形,圓弧半徑應符合規范要求。
7)應嚴格控制保溫材料的含水率。屋面排汽構造的排汽道應縱橫貫通,并與大氣連通的排汽出口相通,不得堵塞。穿過保溫層的管壁應設排汽孔,設置在結構層上,且設在屋面坡度的上方,間格縱橫交接的部位,排汽管應做防水處理;排汽道間距宜為6m,縱橫設置,屋面面積每36㎡宜設一個排汽出口,應安裝牢固,位置正確,封閉應嚴密。排汽管出汽口應防止雨水倒灌,且應進行保護,防止損壞。
8)鋪設屋面隔氣層和防水層前,基層必須干凈、干燥,基層的分格縫要用密封材料嵌填密實;剛性防水層與基層、剛性保護層與柔性防水層之間應做隔離層。屋面細石混凝土保護層分隔縫,間距不宜大于4m。
9)伸出屋面的通氣管周圍抹成斜坡,立管做保護墩,防水層施工時另外加設附加層。加強過水孔處的砼或砂漿的搗固,達到密實不漏水程度。

三、墻體填充墻防裂措施示范
常見問題表現形式:
產生貫通性裂縫、外角部位產生斜裂縫、沿預埋線管產生裂縫。
標準處理措施:
1)后砌填充墻沿高均設置通長2?6@500mm~600mm的通長拉結筋與墻、柱拉結,錨入框架柱、剪力墻內長度為250mm。
2)不同基體材料交接處采取釘鋼絲網等抗裂措施。鋼絲網與不同基體的搭接寬度每邊不小于 150mm。鋼絲網片的網孔尺寸為10mmx 10mm,其鋼絲直徑不應小于0.7mm,應采用熱鍍鋅電焊鋼絲網,并宜采用先成網后鍍鋅的后熱鍍鋅電焊網。鋼絲網用鋼釘或射釘加鐵片固定,間距不大于300mm。
3)在填充墻上剔鑿設備孔洞、槽時,先用切割鋸沿邊線切開,后將槽內砌塊剔除,應輕鑿,保持砌塊完整,如有松動或損壞,應進行補強處理、剔槽深度應保持線管管壁外表面距墻面基層 15mm,并用M10水泥砂漿抹實,外掛鋼絲網片兩邊壓墻不小于150mm。
4)填充墻砌體分次砌筑。每次砌筑高度不超過1.5m,日砌筑高度不大于2.8m;灰縫砂漿應飽滿密實,嵌縫應嵌成凹縫,禁止使用落地砂漿和隔日砂漿嵌縫。
5)填充墻砌筑接近梁板底時,留一定空間,至少間隔15d后,采用實心砌塊斜砌,斜砌角度45o~60°。
6)填充墻砌體臨時施工洞處在墻體兩側預留2Ф6@500拉結筋,補砌時潤濕已砌筑的墻體連接處,補砌應與原墻接槎處頂實,并外掛鋼絲網片,兩邊壓墻不小于150mm。
7)消防箱、配電箱、水表箱、開關箱等預留洞上的過梁,應在其線管穿越的位置預留孔槽,不得事后剔鑿,其背面的抹灰層滿掛鋼絲網片。
8)加氣塊馬牙槎應按規范設置,先退后進(一退一進)。
9)砌體必須砌筑密實,砌塊強度等級不低于MU10,砂漿強度等級不低于M10,應按要求設置鋼筋混凝土構造柱,砌體與混凝土交接處掛設鋼絲網防止開裂。


四、墻面抹灰防空鼓開裂措施示范
常見問題表現形式:
抹灰墻面易出現空鼓、脫落、開裂。
標準處理措施:
外墻抹灰:
1)墻面采用純水泥漿摻5%108膠拍漿,表面飽和≥95%,拍漿成毛刺狀。
2)加氣混凝土砌塊墻面需滿掛Ф0.@12.7X12.7熱鍍鋅鋼絲網,射釘固定,射釘中距400mm;砼柱、梁面與砌體交接面掛同規格熱鍍鋅鋼絲網每側伸出寬度不小于150mm,射釘固定,射釘中距400mm。
3)12厚1:3抗裂砂漿打底,掃毛或劃出紋道(抗裂砂漿可摻0.9公斤聚丙烯纖維/立方米。
4)8厚1:3聚合物水泥防水砂漿抹面(內摻TC-02高效防水劑,摻量為水泥用量的10%)。
5)外墻涂料飾面或面磚。注:基層面處理應先將基層清掃干凈,澆水濕潤,水應滲入墻面內但墻面不能有明水。墻面需做分縫處理的,分格縫的位置及寬度應滿足建筑立面圖要求,分格縫采用塑料分隔條分隔,預埋在10厚水泥砂漿找平層內。
五、預防廁所等有防水要求房間防滲措施示范
常見問題表現形式:
管根、墻根、板周邊等部位滲漏。
標準處理措施:
1)廚廁墻體防水層應沿墻四周上返,高出地面不小于200mm。管道根部、轉角處、墻根部位應做防水附加層。
2)管道穿過樓板的洞口處封堵時應支設模板,將孔洞周圍澆水濕潤,用高于原設計強度一個等級的防滲混凝土分兩次進行澆灌、搗實。管道穿樓板處宜采用止水節施工法。
3)對于沿地面敷設的給水、采暖管道,在進入有水房間處,沿有水房間隔墻外側抬高至防水層上返高度以上,再穿過隔墻進入衛生間,避免破壞防水層。
4)地漏安裝的標高應比地面最低處低5mm,地漏四周用密封材料封堵嚴密。門口處地面標高應低于相鄰無防水要求房間的地面不小于20mm。
5)有防水要求的房間內穿過樓板的管道根部應設置阻水臺,且阻水臺不應直接做在地面面層上。阻水臺高度應提前預留,保證高出成品地面20mm。有套管的,必須保證套管高度滿足上口高出成品地面20mm。
6)砌筑附墻煙(氣)道時,使用煙道抽子來控制砂漿、混凝土和碎磚墜落煙道內;做內襯時應邊砌邊抹內襯,或做勾縫,確保煙(氣)道的嚴密性。承口周邊的砂漿打口必須嚴密,組裝管道應固定牢固,上口應用灰袋紙等物臨時密封好,以防止雜物掉入管內。煙道預留孔板上周邊采用不低于C20細石砼,高度不小于100mm。??
7)衛生間管根按規范設置套管或防水翼環;吊洞澆灌用不低于C20細石砼加膨脹劑搗密振實,分二次施工。
8)衛生間返邊與主體結構同時施工。
9)套管和立管的縫隙填塞密實。
10)廚廁墻體嚴禁使用加氣砼塊,墻體防水高度為1.8m。衛生間、陽臺、露臺降板處防水工藝。



